Projet Appartement 80m2
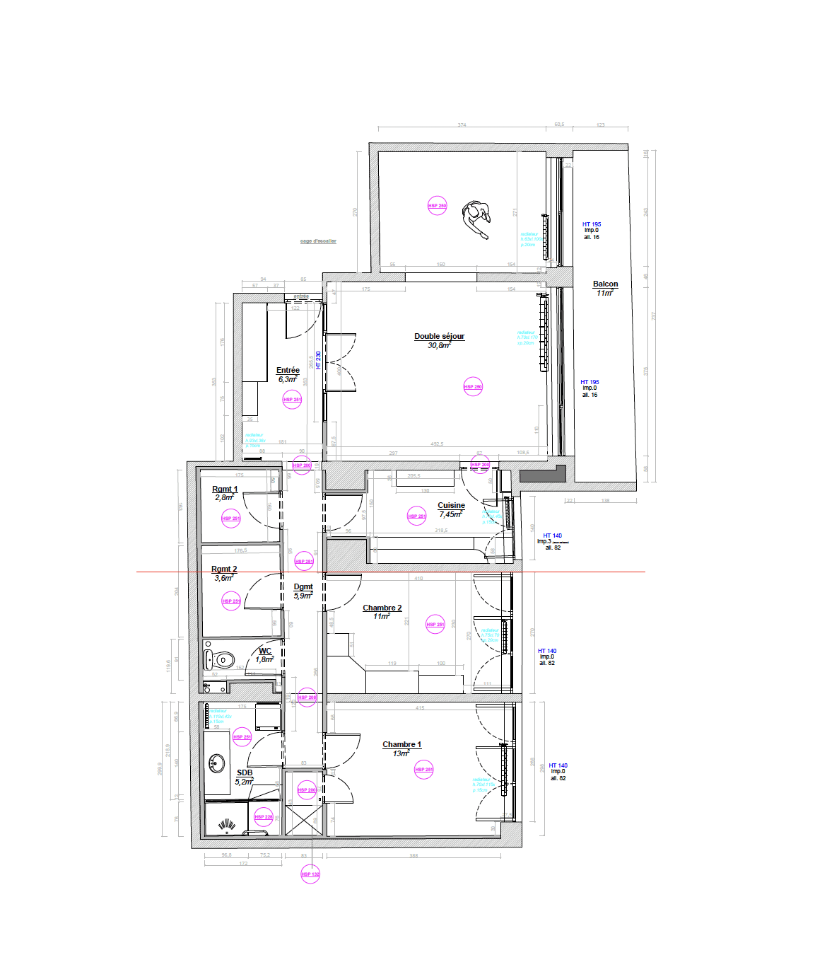
Le projet Sotteville est une rénovation complète actuellement en phase de conception. Pour cet appartement de 80 m² situé près de Rouen, l'objectif est de transformer radicalement l'existant pour créer un lieu de vie au caractère affirmé. Mon intervention a débuté par une phase d'immersion technique indispensable : la réalisation de l'état des lieux et un relevé de cotes précis, posant les fondations de cette future suite de pièces de vie. L’intention de ce projet en devenir est de redessiner l’espace autour de la lumière. Le séjour a été repensé pour s’articuler autour des baies vitrées, créant un dialogue entre bois foncé, nuances de vert et finitions noires. C’est une recherche d’équilibre entre structure et émotion, où chaque choix de matière vise à révéler le potentiel encore inexploité du lieu.
Services
Architecture d'intérieur
Conception - Suivi de chantier
Client
Particulier
Année
En cours - 2026
Localisation
Sotteville-les-Rouen, Normandie








